NDIBS®

FA-Torch
ParrotThermalDrone
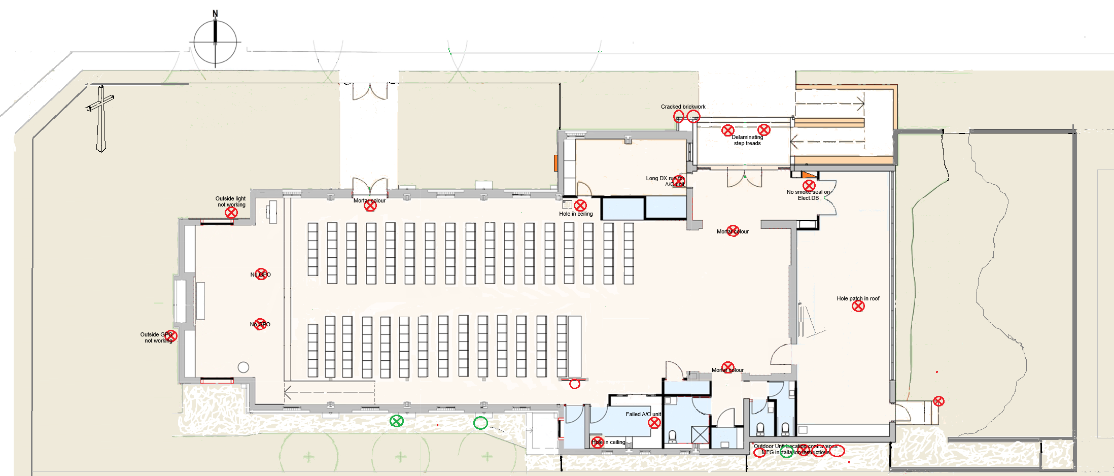
Church Defect Plan 2600205

Click on circle to view defect detail and picture

Building Works Renovations Defects as at 8th March 2026

Hitachi A/C Installation Manual

Hitachi A/C minimum Clearance detail;

Note: each right angle bend in a refrigerant line equates to 5m of pipe length. Therefore the virtual equivalent length of the vestry A/C refrigerant lines is 65m in length.
This is poor design and installation.

Vestry & Servery A/C Units

Vestry & Servery A/C Outdoor Unit dataplates